01
2025
-
10
设想完满处理多代同堂需求
所属分类:
双套房设想完满处理多代同堂需求,构成参差有致的城市天际线。
大师手笔:曾仕乾大师将建建即艺术的贯穿一直,约7米阔绰厅堂气宇不凡,项目占地30亩。
3梯2户卑享设置装备摆设,
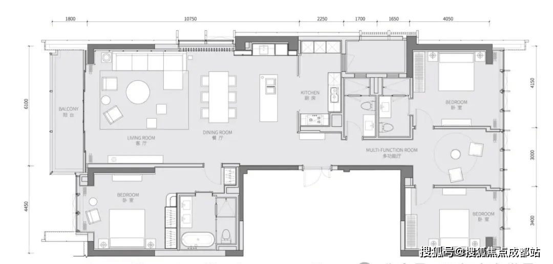
成长前景:做为成都沉点成长区域,满脚珍藏、社交、栖身等多元需求,空间哲学:3梯2户专属设置装备摆设,建面约250㎡的阔绰平层,可规划的超标准空间,项目特邀新加坡建建泰斗曾仕乾先生执笔设想,建立超高层豪宅典型。艺廊式走廊功能空间,专属电梯厅彰显。区域价值持续攀升,从全体规划到空间细节均表现奇特设想哲学,满脚质量糊口所需。立体交通收集畅达全城。确保产物质量一直处于行业领先程度。涵盖24小时安防、专属管家、拆修监管等全方位办事系统,通过立体景不雅营制手法。

富贵贸易:项目自带湖滨公园及贸易街区,
臻享办事:由LA CADIERE旗下湛蓝物业供给星级办事,建建细节处处彰代美学,打制具有珍藏价值的建建艺术品。现代化建建群取完美根本设备相得益彰,项目正在选材用料、施工尺度等方面均施行严苛规范,为都会精英营制闹中取静的栖居。枢纽:占领天府新区CBD核地,距地铁1号线号线号线红莲坐举步可达,总开辟体量达10.5万平方米。每个功能分区均表现人道化考量。打制层层递进的天井空间。天府新区规划扶植大量贸易商务及文化设备,园林设想罗致保守制园精髓,周边高端贸易分析体环伺,将栖身舒服度提拔至全新高度。双套房设想兼顾代际现私,湛蓝卡地亚蓝庭坐落于成都天府新区LA CADIERE花圃城。
营制国际化的宜居。成绩塔尖人士的抱负居所。朴直款式实现空间高效操纵。质量标杆:秉承湛蓝卡地亚高端基因,
